Projects

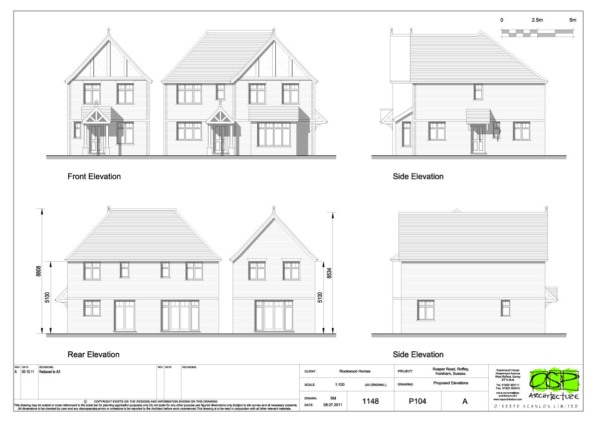
Rusper Road


The site has detailed planning permission for three architect designed homes, reflecting the Edwardian character and architectural features of the existing property and those within the surrounding area.

The site is accessed via a tree lined twitten connecting Rusper and Millthorpe Roads which will be upgraded to provide vehicular access.