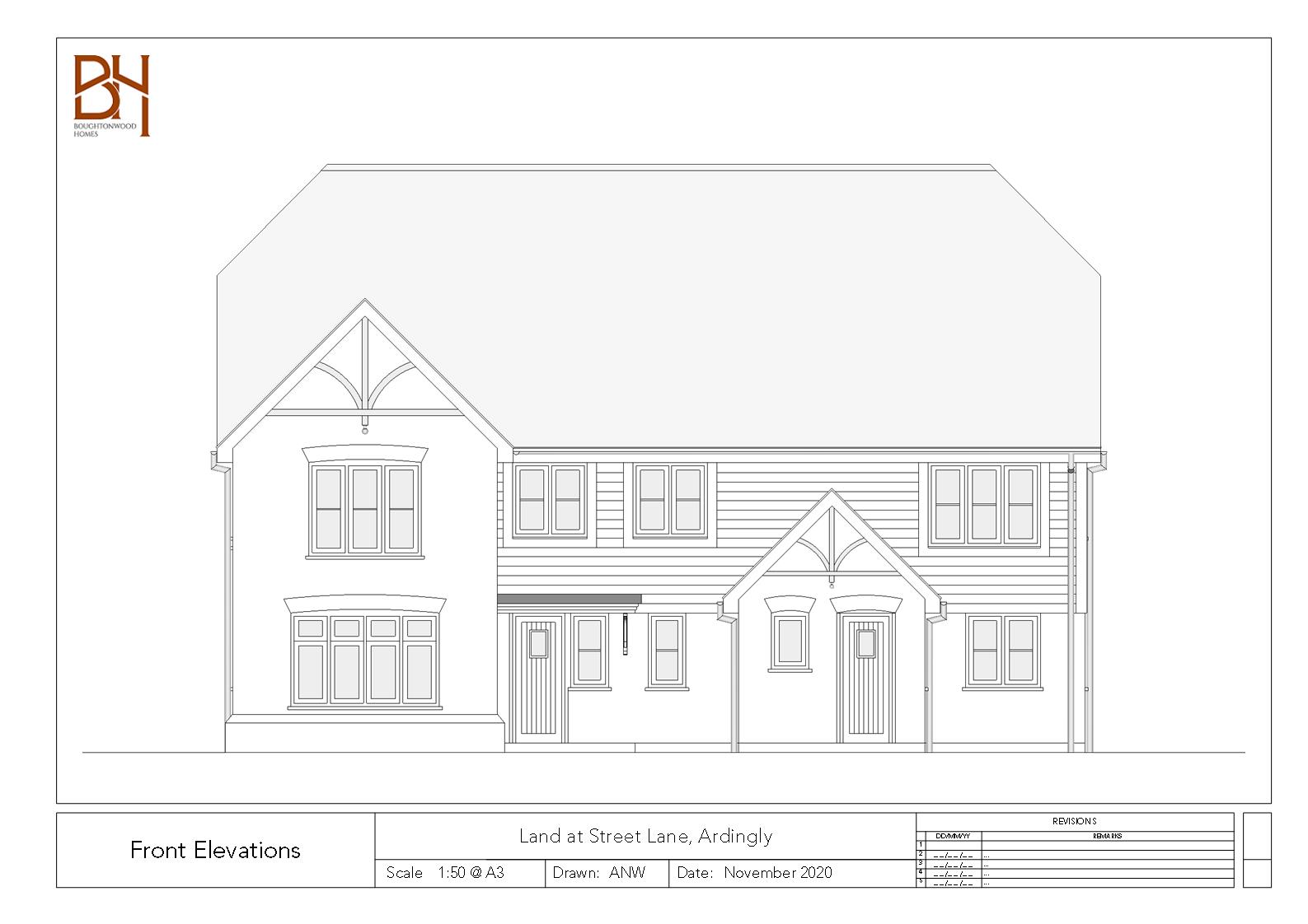
Projects

Church Lane


A three bedroom house and a four bedroom house located at the edge of this attractive village with far reaching views over fields towards the south downs at the rear.