.
The site is set in a convenient location within walking distance of the town center, Horsham & Littlehaven railway stations, local schools and amenities.
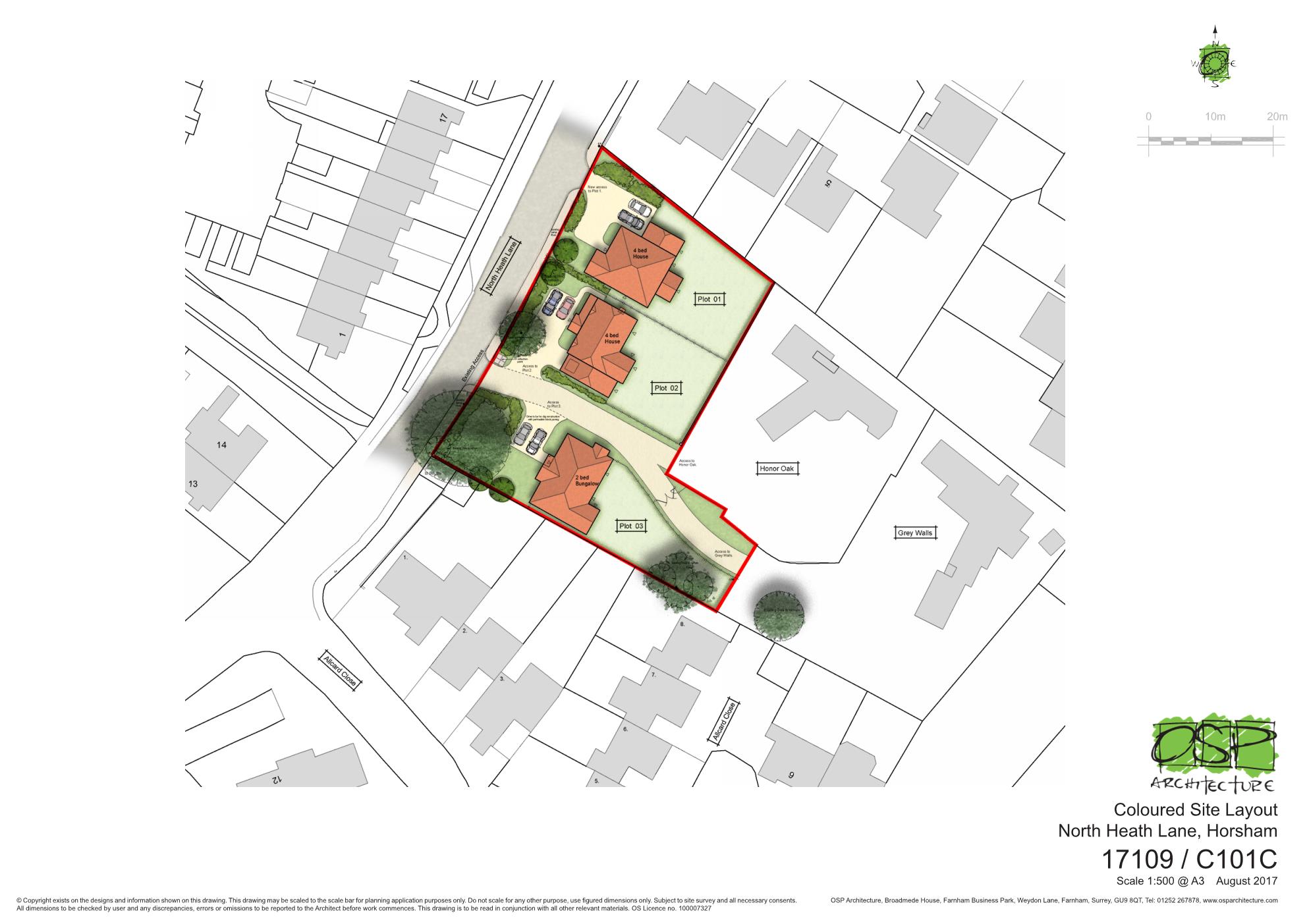
The houses were constructed with a high level of specification and benefited from generous turfed and landscaped gardens, garages and private driveways.
The site is set in a convenient location within walking distance of the town center, Horsham & Littlehaven railway stations, local schools and amenities.
The houses were constructed with a high level of specification and benefited from generous turfed and landscaped gardens, garages and private driveways.